IBLS Wheel Standard: Difference between revisions
| Line 3: | Line 3: | ||
== Current Version == | == Current Version == | ||
[[File:IBLS Wheel Standard 1981.jpg|thumb|center| | [[File:IBLS Wheel Standard 1981.jpg|thumb|center|600px]] | ||
<center> | <center> | ||
Revision as of 22:57, 13 September 2013
Current Version
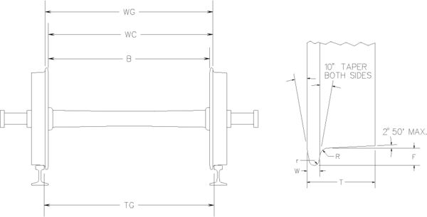
| Scale | TG=Track Gauge | T=Tire Width | W=Flange Width | F=Flange Depth | R=Contour Radius | r=Flange Radius | B=Back to back | WG=Wheel Gauge | WC=Wheel Check |
|---|---|---|---|---|---|---|---|---|---|
| 1/2" | 2.500 min | 9/32 min | 0.063 max | 0.075 max | 0.025 +-0.006 | 0.030 typ | 2-9/32 +0.200 -0.000 | 2-15/32 +0.000 -0.020 | 2.405 ref |
| 3/4" | 3.500 min | 0.406 min | 0.094 max | 0.094 max | 0.047 +-0.008 | 0.040 typ | 3.281 +0.020 -0.000 | 3.470 +0.000 -0.020 | 3.375 ref |
| 1" | 4.750 min | 0.505 min | 0.125 max | 0.140 max | 0.062 +-0.010 | 0.050 typ | 4.437 +0.020 -0.000 | 4.690 +0.000 -0.020 | 4.562 ref |
| 1-1/8" | 5-1/32 min | 5/8 min | 5/32 max | 3/16 max | 1/16 +-0.010 | 1/16 typ | 4-9/16 +1/64 -0 | 4-14/16 +1/64 -0 | 4-47/64 ref |
| 1-1/2" | 7.250 min | 0.750 min | 0.156 max | 0.187 max | 0.094 +-0.015 | 0.062 typ | 6.870 +0.020 -0.000 | 7.190 +0.000 -0.020 | 7.031 ref |
| 1-1/2" | 7.500 min | 0.750 min | 0.156 max | 0.187 max | 0.094 +-0.015 | 0.062 typ | 7.120 +0.020 -0.000 | 7.440 +0.000 -0.020 | 7.281 ref |
| 1.6" | 7.500 min | 0.750 min | 0.156 max | 0.187 max | 0.094 +-0.015 | 0.062 typ | 7.120 +0.020 -0.000 | 7.440 +0.000 -0.020 | 7.281 ref |
1981 Version
From the "IBLS Wheel Standards" published in the October 1981 issue of Live Steam Magazine. This version of the chart is somewhat difficult to read. It included rows of numbers that attempted to justify the values selected by the IBLS.
Background
by Ken Shattock
In 1978-1979 there was a "Blue-Ribbon" committee formed of SIX (6) individuals who were asked to meet and put together a defined list of "BLS WHEEL STANDARDS". These individuals, known to many in our Fraternity, were as follows:
The efforts of this group resulted in the BLS Standards, They were presented with the "10th Annual Live Steam Magazine Award" on December 1, 1979 by the late William C. Fitt, then-Editor of Live Steam Magazine.
These "Interim IBLS Standards" have been widely adopted and have become the accepted wheel standards for the hobby.
by Rick Henderson
As worldwide communications improved and it became evident that having two standards for 1:8 scale modeling in the U.S. was counterproductive, an attempt was put forth to adopt a true standard for track gauge, wheel profiles and couplers. The organization known as the International Brotherhood of Live Steamers was formed, with representatives from areas around the world working with riding scale railroads. Via mailings, all known private and club railroads were contacted and asking for input on what the standards should be so a single set could be established. From the replies, it became abundantly apparent there was no easy solution within the U.S. and the I.B.L.S. settled on adopting and recommending standards following those being used in California and sent these out as “proposed standards” to everyone. Since these first included 7-1/2” as the correct gauge for 1:8 scale, they were never officially adopted by everyone and have remained as proposed ever since. However, in the U.S., these proposed standards have been used by most everyone for wheels and couplers and each area has used their local gauge standard. This has allowed for the trains to easily travel to other railroads and interchange equipment fairly easy, except for crossing The 1/4” Demarcation Line in the northeast. Today if you look at most IBLS wheel and coupler charts, you will find gauging standards for both 7-1/4” and 7-1/2” that have become the accepted standards by most.
by Keith Taylor
Posted on Chaski.org, 4 March 2007:
As the last East Coast secretary of the IBLS, and having known Mr. Purinton, the founder of the Brotherhood of Live Steamers, I can tell you he was not opposed to standards. He felt that there was no need to create "new" standards as there was already a published set of standards in existence since the dawn of the Twentieth Century.
The "Live Steam" hobby came to us from England, and live steamers used the standards of the Society of Model and Experimental Engineers. These standards were developed by Henry Greenly, and are still used virtually all over the world....except here.
Endorsements
The following organizations use, recommend or require the IBLS Wheel Standard.
- Finger Lakes Live Steamers
- Electric Powered Locomotive Works
- Sacramento Valley Live Steamers
- Home Railway Journals
- Ridge Live Steamers
- Tom Bee
- Green Loco
- Colorado Live Steamers
- Mr Motion
- BSC Fabricators Inc
- Calvert Central Railroad
- Lawn Tracks
- Plumb Cove Studios
- Hesston Steam Museum
- Mid-South Live Steamers
- Locomotive Chassis
- The Great American Train Company
- Golden Gate Live Steamers
- Northeastern Ohio Live Steamers
- Washington County Railroad
- Cinder Sniffers Inc
- Southwestern Live Steamers
- Rhino Industries
- Kitsap Live Steamers
- Island Pond Railroad
User Comments
Posted on Chaskit.org by Matt Mason, 17 January 2006:
- Whether or not the wheel standards were "formally" adopted, so many clubs in the US (especially western US) use them they have become defacto standards. Yes, some clubs use other dimensions, and you should use what works for you and your club. As mentioned before, just because these dimensions are out there, you can still model however you want. As a testament to these standards, I was able to fly from California to New Jersey Live Steamers with my equipment, put the loco on the track, and run with no derailments. I like a set of standards, myself.
Bibliography
- "BLS Wheel Standards: Detailed Proposal", Live Steam Magazine, Oct 1974
- "Open Letter to the 'Committe of Five'", William C. Fitt, Concerns addressed to the BLS, Live Steam Magazine, Aug 1975
- "IBLS Wheel Standard: Back by Popular Request", Chart, Live Steam Magazine, Oct 1981
- "IBLS Secretary's Report - Western Region - 1-1/2 Scale Standards", Richard Thomas Jr., Live Steam Magazine, Mar-Apr 1998
- "Mini-Rail Notes - Wheel & Coupler Standards", Lewis Soibelman, Live Steam Magazine, Feb 1991
References
- "BLS Wheel Standards: Detailed Proposal", Live Steam Magazine, Oct 1974
- "IBLS Wheel Standard: Back by Popular Request", Live Steam Magazine, Oct 1981
- GGLS Live Steam Magazine Index
- "IBLS Wheel Standards", Southwestern Live Steamers
- "IBLS Wheel Standards", Finger Lakes Live Steamers
- "IBLS Wheel Standards", Sacramento Valley Live Steamers
- "IBLS Wheel Standards", Ridge Live Steamers
- "IBLS Wheel Standards", "Riding Scales & Gauges", DiscoverLiveSteam.com
- GGLS 2002 Wheel Standards
- Sydney Live Steam Locomotive Society Wheel Standards
- SLSLS Wheel Standards, 1966 Version
- "IBLS Wheel Standards", Modeltec Magazine, August 1995, page 23
- Rhino Industries, specs for 5" gauge, 7-1/2" gauge and 10-1/4" gauge
- Mini-Rail Corporation
- "BLS 1972 National Meet Coming Up!", Live Steam, April 1972
- "Feynman: Fun To Imagine 7: The Train", or "Why are train wheels tapered?", Youtube.com



