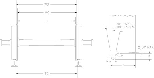
IBLS Wheel Standard

From IBLS
Jump to navigation Jump to search

1981 Version

From the "IBLS Wheel Standards" published in the October 1981 issue of Live Steam Magazine.

Background

In 1978-1979 there was a "Blue-Ribbon" committee formed of SIX (6) individuals who were asked to meet and put together a defined list of "BLS WHEEL STANDARDS". These individuals, known to many in our Fraternity, were as follows:

The efforts of this group resulted in the BLS Standards, They were presented with the "10th Annual Live Steam Magazine Award" on December 1, 1979 by the late William C. Fitt, then-Editor of Live Steam Magazine.

These "Interim IBLS Standards" have been widely adopted and have become the accepted wheel standards for the hobby.

Endorsements

The following organizations use, recommend or endorse the IBLS Wheel Standard.